- Sales Vinhomes
Biệt thự đơn lập Vinhomes Green City là dòng sản phẩm cao cấp nhất tại đại đô thị Vinhomes Hậu Nghĩa, Đức Hòa, Long An. Các căn đơn lập tại đây không chỉ sở hữu kiến trúc sang trọng theo phong cách Đông Dương, Hy Lạp, mà còn nằm tại vị trí ven sông đắt giá, mang lại không gian sống riêng tư, thoáng đãng và đầy đủ tiện nghi cao cấp. Với số lượng giới hạn và pháp lý rõ ràng, đây là sản phẩm được giới đầu tư đánh giá cao về tiềm năng sinh lời và tính sở hữu lâu dài.
Bài viết dưới đây sẽ giúp khách hàng hiểu rõ hơn về thiết kế, giá bán dự kiến, chính sách ưu đãi và lý do nên sở hữu biệt thự đơn lập Vinhome Green City ngay từ giai đoạn đầu. Hãy cùng khám phá ngay sau đây.
Thông tin về biệt thự đơn lập Vinhomes Green City Long An
| Thông tin | Chi tiết |
| Số lượng | Khoảng 210 căn |
| Vị trí | Nằm biệt lập, được bao quanh bởi hồ cảnh quan |
| Diện tích đất | 200m² – 250m² |
| Thiết kế | Cao 4 – 4,5 tầng |
| Phong cách thiết kế | Đông Dương, Hy Lạp… |
| Mật độ xây dựng | 40 – 45% |

Minh họa biệt thự đơn lập Vinhomes Green City
Giá bán đơn lập Vinhomes Green City bao nhiêu?
Hiện tại, giá bán đơn lập Vinhomes Hậu Nghĩa chưa được chủ đầu tư công bố, chúng tôi sẽ cập nhật khi có thông tin chính thức từ chủ đầu tư Vinhomes.
Tuy nhiên, theo khảo sát từ các khu đô thị tương đương trong khu vực và mặt bằng giá hiện tại tại Đức Hòa – Long An, mức giá khởi điểm ước tính có thể từ 24 tỷ đồng/căn, tùy thuộc vào diện tích, hướng nhà và vị trí trong từng phân khu.
Ngay khi bảng hàng chính thức được công bố, chúng tôi sẽ cập nhật đầy đủ để khách hàng dễ dàng so sánh và đưa ra quyết định phù hợp.
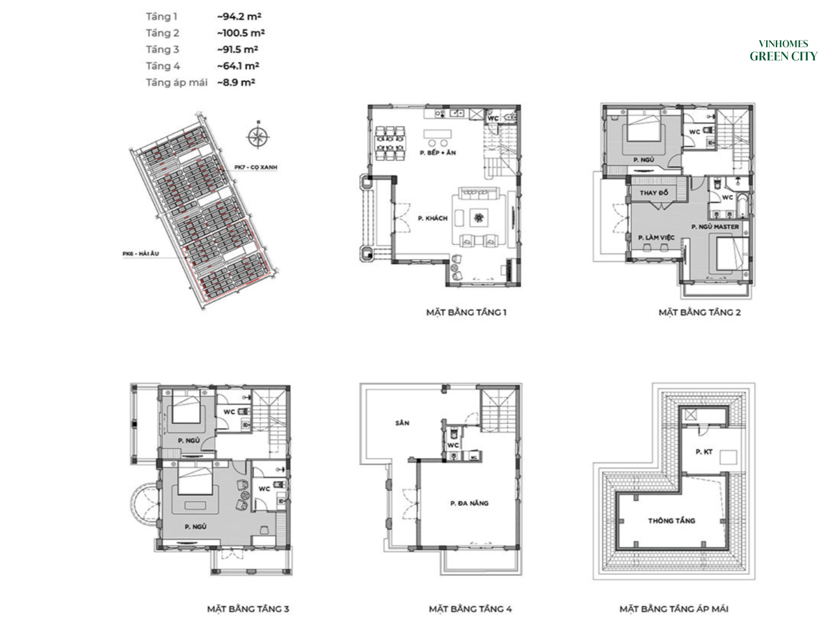
Mặt bằng và thiết kế đơn lập Vinhomes Hậu Nghĩa
Đơn lập Vin Green City được định vị là phân khúc cao cấp nhất của dự án, dành riêng cho những chủ nhân đề cao không gian sống riêng tư, thẩm mỹ tinh tế và sự biệt lập giữa khu đô thị hiện đại.
Dự kiến chỉ có khoảng 210 căn, được bao quanh bởi hồ cảnh quan. Mỗi căn sở hữu diện tích đất trung bình từ 200 – 250m², chiều cao tối đa 4,5 tầng, đảm bảo không gian sống rộng rãi cho gia chủ.
Đơn lập mang phong cách Đông Dương, Hy Lạp…với kiến trúc mặt tiền cân đối, sang trọng, phối màu thanh lịch và hình khối bền vững theo thời gian.
Về bố trí công năng, biệt thự đơn lập được thiết kế tối ưu theo từng tầng, đảm bảo tính riêng tư và linh hoạt cho gia đình nhiều thế hệ:
- Tầng trệt là khu vực sinh hoạt chính với phòng khách thông thoáng, phòng bếp liền kề khu ăn uống. Một số căn có thêm garage riêng hoặc không gian tiểu cảnh sân vườn.
- Tầng 2 là khu vực nghỉ ngơi với phòng ngủ master lớn, đi kèm phòng thay đồ, phòng làm việc.
- Tầng 3 được bố trí thêm các phòng ngủ phụ, không gian sinh hoạt chung.
- Tầng thượng (tum) có thể tận dụng làm không gian thiền, trồng cây, sân BBQ…

Minh họa mặt bằng một căn đơn lập điển hình tại Vin Green City
Lý do nên mua biệt thự đơn lập Vinhome Green City
Trong các loại hình sản phẩm tại khi đô thị này, biệt thự đơn lập được xem là phân khúc cao cấp nhất – không chỉ nhờ không gian sống biệt lập, cảnh quan sinh thái, mà còn bởi tiềm năng gia tăng giá trị theo thời gian. Đây là thời điểm hợp lý để những khách hàng có tiềm lực tài chính nắm giữ loại hình sản phẩm vừa khan hiếm, vừa mang lại nhiều kịch bản khai thác linh hoạt.
Không gian sống xứng tầm, gắn kết thiên nhiên
Mỗi căn biệt thự đơn lập được thiết kế theo nguyên lý “tách biệt nhưng kết nối” – tách biệt khỏi sự ồn ào, đông đúc nhưng vẫn kết nối thuận tiện với tiện ích nội khu và các trục cảnh quan chính.
Với 4 mặt thoáng, sân vườn riêng và lối đi biệt lập, không gian sống tại đây mở ra trải nghiệm sống gần gũi thiên nhiên, thoáng đãng, riêng tư – điều mà không phải dự án nào cũng có thể mang lại.
Đặc biệt, các căn biệt thự đơn lập Green City được ưu tiên bố trí gần hồ điều hòa và công viên trung tâm, hoặc ven dòng sông cảnh quan, tạo nên môi trường sống yên bình, thư giãn mỗi ngày. Đây không chỉ là nơi để ở, mà còn là không gian giúp chủ nhân tái tạo năng lượng, chăm sóc sức khỏe tinh thần và gắn kết gia đình.
Giá trị khai thác và đầu tư dài hạn vượt trội
Với số lượng giới hạn chỉ khoảng 200 căn trong tổng thể gần 200 ha, biệt thự đơn lập là sản phẩm khan hiếm có tính thanh khoản cao, nhất là trong các giai đoạn sau khi khu đô thị đi vào vận hành.
Sự khan hiếm về số lượng đồng nghĩa với khả năng tăng giá ổn định, đặc biệt khi các yếu tố như hạ tầng, tiện ích và cộng đồng cư dân đã hoàn thiện.
Ngoài việc là nơi ở lý tưởng, biệt thự đơn lập còn mở ra cơ hội khai thác thương mại trong tương lai như mô hình nghỉ dưỡng ven đô, cho thuê dài hạn hoặc tổ chức homestay cao cấp.
Vị trí ven sông, phong thủy tốt và thiết kế kiến trúc sang trọng khiến sản phẩm này thu hút nhóm khách hàng có nhu cầu trải nghiệm “sống xanh – sống sang” ngày càng tăng cao.
Sự thay đổi trong xu hướng tiêu dùng sau đại dịch cũng khiến nhiều khách hàng ưu tiên lựa chọn không gian sống biệt lập, nhiều cây xanh, thuận tiện nghỉ dưỡng tại gia thay vì di chuyển đến các khu nghỉ xa trung tâm. Điều này càng làm nổi bật giá trị thực tiễn và bền vững của biệt thự đơn lập Vin Hậu Nghĩa trong tương lai gần.
Ai nên mua biệt thự đơn lập Vinhome Hậu Nghĩa?
Khách hàng là nhà đầu tư bất động sản cao cấp đang tìm kiếm một sản phẩm bất động sản cao cấp có số lượng khan hiếm, khả năng tăng giá mạnh mẽ và thanh khoản tốt trong tương lai.
Khách hàng là doanh nhân, chuyên gia thành đạt: Mong muốn sở hữu bất động sản ven sông, không gian sống thoáng đãng, đẳng cấp, đồng thời có thể khai thác cho thuê nghỉ dưỡng hoặc làm văn phòng cao cấp.
Khách hàng là những gia đình thượng lưu, đa thế hệ: Cần không gian sống rộng rãi, tiện nghi với thiết kế 4 – 5 tầng, đáp ứng nhu cầu sinh hoạt của nhiều thế hệ trong gia đình.
Biệt thự đơn lập Vinhomes Green City không chỉ là biểu tượng của không gian sống đẳng cấp mà còn là một kênh đầu tư giá trị với tiềm năng sinh lời bền vững. Với thiết kế sang trọng, vị trí biệt lập ven sông sinh thái và số lượng khan hiếm, đây là sản phẩm phù hợp cho cả khách hàng mua ở lẫn nhà đầu tư chiến lược. Nếu anh chị đang tìm kiếm một bất động sản cao cấp để an cư hoặc đầu tư dài hạn, đây chính là thời điểm vàng để sở hữu.
Hãy liên hệ ngay với chúng tôi qua số hotline: 0938.910.329 để được tư vấn chi tiết và cập nhật những chính sách bán hàng hấp dẫn nhất!










